ファルマン設計内田 HOME PAGE
所沢 狭山 入間
毛呂山町目白台1丁目

物件種別 中古 価格(万円) 0,000万円(税込)
間取り 御成約済 構造および階数 木造2階建,第一種低層住居専用地域
交通 西武池袋線 狭山ヶ丘 駅 東武越生線東毛呂駅 徒歩25
所在地 埼玉県入間郡毛呂山町目白台1丁目
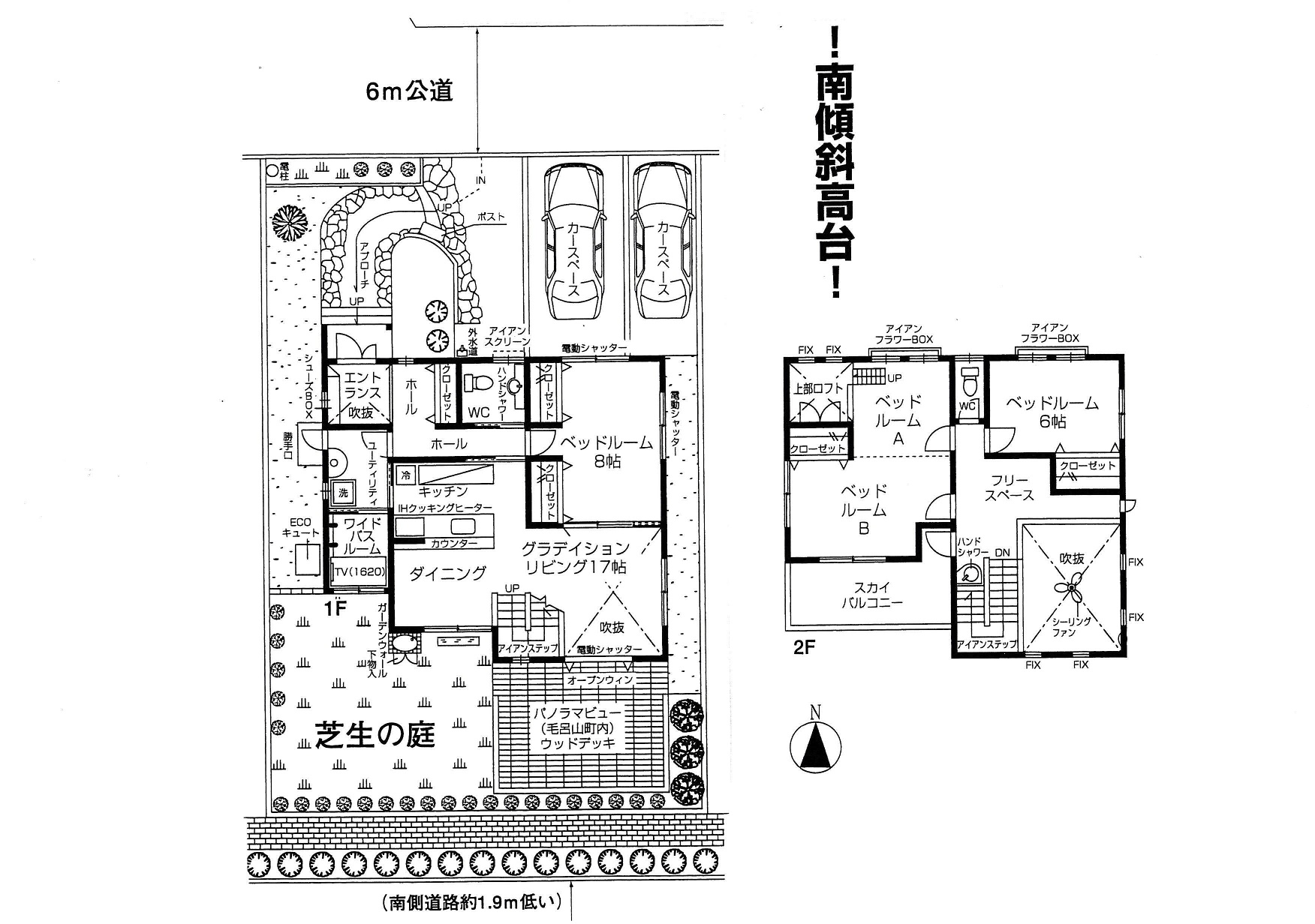
土地面積(平米) 248.04 平米 建物面積 137.46 平米
完成日または予定日 2012年3月築 取引形態 売主
設備 ・東京電力・プロパン・本下水・カースペース・公営水道

間取り図

クリックでポップアップ表示
外観画像

クリックでポップアップ表示